
Zdvíhací žeriav, Zdvíhací žeriav 30 ton
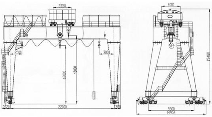
Dvojitý mostový portálový žeriav s háčikmi sa aplikuje mimo skladu alebo železnice na bokoch, aby vykonával bežné zdvíhacie a vykladacie práce. Tento druh žeriavu pozostáva z mosta, oporných nohavíc, žeriavového dopravného orgánu, vozíka so silným zdvíhacím navijákom, elektrického zariadenia a riadiaceho systému. Vďaka svojej vysoko výkonnej konštrukcii môže byť široko používaný vo všetkých druhoch priemyselného odvetvia.
ťažký výťahový žeriav, dvojitý portálový žeriav 30 ton
Dvojitý mostový portálový žeriav s háčikmi sa aplikuje mimo skladu alebo železnice na bokoch, aby vykonával bežné zdvíhacie a vykladacie práce. Tento druh žeriavu pozostáva z mosta, oporných nohavíc, žeriavového dopravného orgánu, vozíka so silným zdvíhacím navijákom, elektrického zariadenia a riadiaceho systému. Vďaka svojej vysoko výkonnej konštrukcii môže byť široko používaný vo všetkých druhoch priemyselného odvetvia.






English
हिंदी
Indonesia
România limbi
türkiye
עברית
Cymraeg
hrvatski
Polski
русский
한국어
Català





